Veka
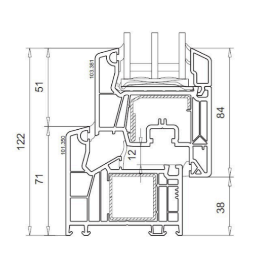
SOFTLINE 76 MD
Doté d'un troisième joint central pour une meilleure étanchéité à l'air et à l'eau, ce profilé améliore encore les performances thermiques et acoustiques. Idéal pour les logements exigeants en confort.
Caractéristiques
Type de produit : Fenêtres, Portes-fenêtres
Type de profil : Standard
Matériaux : PVC
Coefficient thermique : Uw pour Ug = 0.74
Téléchargements
Découvrez nos fichiers CAD, BIM et bien d’autres. Vous devez être connecté afin d’accéder à l’ensemble des fichiers. Créez votre compte dès maintenant ! Se connecter !
Palette de couleur
Retrouvez ici notre sélection de couleurs disponibles pour ce produit. Chaque teinte est soigneusement choisie pour s’adapter aux propriétés du matériau et garantir une finition esthétique, durable et adaptée à vos besoins.
